Paris 37 Apartments
- Project Title: Paris 37 Housing
- Category/Type: Housing
- Address: Paris Street, Cluj-Napoca
- Area: 1650 sqm
- Project Status: Completed
- Design/Completion Year: 2015-2019
- Architecture Office: SQM Architecture
- Design Team: Ferencz Bakos, Cristian Urcan, Adina Chiejdan, Mihai Pașcalău
- Structural Engineer: XC Project
- Mep Engineer: CSP Proiect Line
- Renderings: Cosmin Ciubotariu
- Photographer: Miruna Moldovan
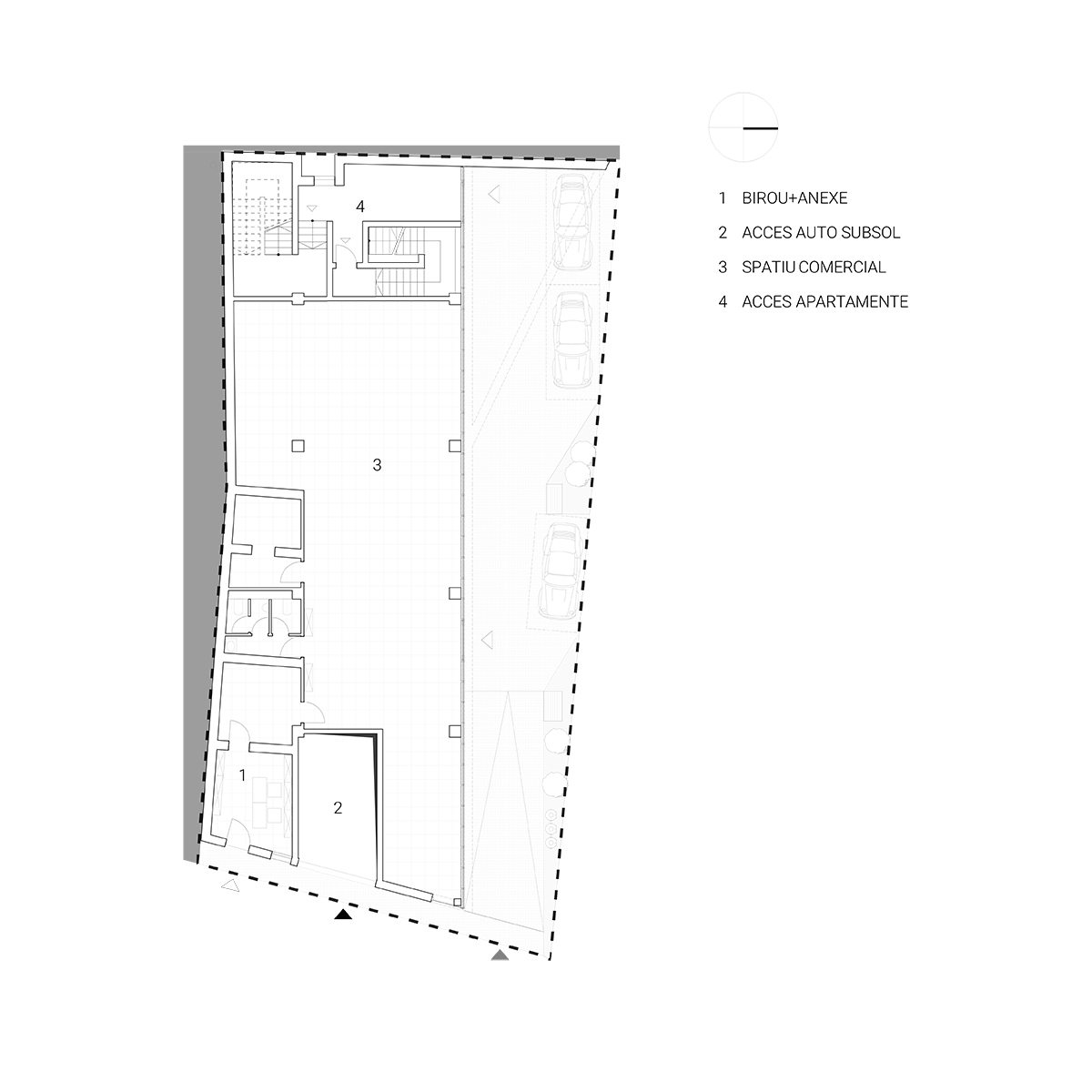
Situated in an intricate context, on a plot that has a blind wall facing the southern side and a park in the north, the extremely difficult volumetric decision was to realize this mixed building housing unit so that it could contain all the requisite functions, but at the same time to respond to urban planning challenges. Thus, the building with a commercial ground floor and 11 apartments was designed in the volume resulting from the necessary and skillfully oriented withdrawals.
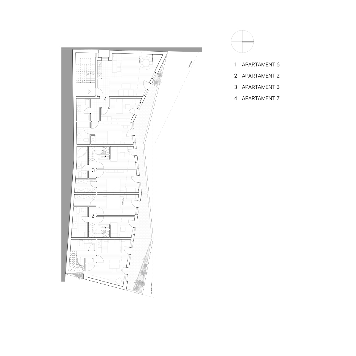
We developed a useful blind wall in case of future reorganization of the Paris Street and generated through withdrawals a series of terraces facing the nearby park. To counter the Nordic orientation, all levels have been folded so as to let in the necessary light from the east and west, thus resulting in this intentionally irregular aspect. Also, each apartment was designed so that it can be carried out in certain versions on two levels, with interior stairs, resulting in a composition of superimposed volumetric blocks, thus leaving the usual pattern of an apartment building.
Amplasat într-un context complex, pe o parcelă care dispune în sud de un calcan și în nord de un parc, decizia volumetrică extrem de dificilă a fost de a realiza acest imobil mixt astfel încât să poată conține toate funcțiunile solicitate, dar în același timp să răspundă și provocărilor urbanistice. Astfel, imobilul cu un parter comercial și cu 11 apartamente a fost croit în volumul rezultat din retragerile necesare și abil orientat.
Am desfășurat un calcan util viitoarei restructurări a străzii Paris și am generat prin retrageri o serie de terase spre parcul din față. Pentru a contracara orientarea nordică, toate nivelurile au fost pliate astfel încât să generăm aport de lumina din est și din vest, astfel apărând acest aspect intenționat neregulat. De asemenea, fiecare apartament a fost astfel gândit încât să poată fi desfășurat în anumite variante pe două niveluri, cu scări interioare, rezultând o compoziție de blocuri volumetrice suprapuse, ieșind astfel din tiparul uzual al unui imobil de apartamente.






