Odobești Duplex
- Project Title: Odobești Duplex
- Category/Type: Housing
- Address: Odobești Street, Cluj-Napoca
- Area: 410 sqm
- Project Status: Unbuilt
- Design/Completion Year: 2022-2023
- Architecture Office: Meta Morphosis Architecture Studio
- Design Team: Ferencz Bakos, Dragoș Bodean, Maria Scrob
- Renderings: Dragoș Bodean
Located in the northern area of Cluj, this semi-detached residence with two housing units offers a contemporary interpretation of urban living, perfectly harmonizing with the gentle topography of the site, which features a slight slope toward the courtyard. The project unfolds across four distinct levels: basement, ground floor, first floor, and a recessed upper floor, each designed to optimize space and capture the best views of the surrounding urban and natural landscape.
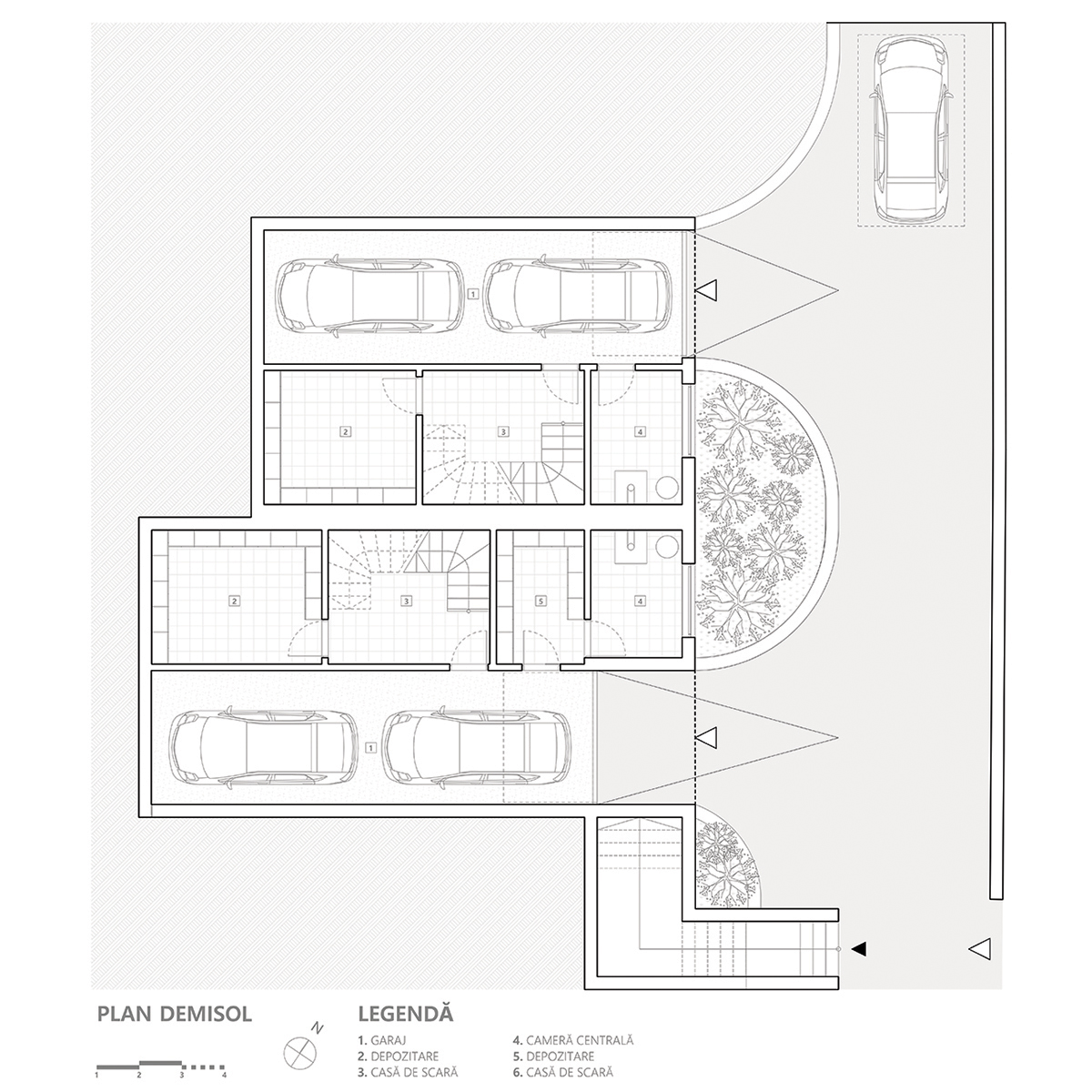
The basement is focused on maximizing functionality, accommodating parking spaces and technical areas.
The ground floor is dedicated to the living areas, designed with a direct connection to an extended terrace that seamlessly integrates with the outdoor garden.
The first floor houses two spacious bedrooms, each configured to provide comfort and privacy, while the recessed upper floor hosts the master suite. This level is conceived as a private sanctuary, featuring access to a generous terrace where residents can enjoy panoramic views of the surrounding hills and urban skyline.
The architecture of the building stands out through its simple and elegant lines, reflecting a modern design language that emphasizes clarity and refinement. As a distinctive feature, the exterior envelope incorporates reclaimed brick cladding, adding an element of texture and aesthetic depth that blends harmoniously into the contemporary landscape.
Situată în zona de Nord a Clujului, această locuință semicolectivă cu două unități locative reprezintă o interpretare contemporană a vieții urbane, armonizându-se perfect cu topografia delicată a terenului, care prezintă o ușoară pantă spre curte. Proiectul se desfășoară pe patru niveluri distincte: subsol, parter, etaj 1 și un etaj retras, fiecare configurat pentru a optimiza spațiul și a capta cele mai bune priveliști ale peisajului urban și natural înconjurător.
La subsol, conceptul se concentrează pe funcționalitate maximă, găzduind spațiile de garare și cele tehnice.
Parterul este dedicat zonelor de zi și este proiectat cu o deschidere directă către o terasă extinsă, care se integrează fluid cu grădina exterioară.
Etajul 1 adăpostește două dormitoare spațioase, fiecare configurat pentru a oferi confort și intimitate, în timp ce etajul retras găzduiește suita matrimonială. Aceast nivel este conceput ca un sanctuar privat, cu acces la o terasă generoasă de unde locatarii pot admira vederea panoramică asupra dealurilor învecinate și a orizontului urban.
Arhitectura imobilului se distinge prin linii simple și elegante, reflectând un limbaj modern ce valorizează claritatea și rafinamentul. Ca un detaliu distinctiv, anvelopa exterioară include placaj cu cărămidă aparentă recuperată, adăugând un element de textură și profunzime estetică ce se încadrează armonios în peisajul contemporan.




