House By The Lake
- Project Title: House By The Lake
- Category/Type: House
- Address: Chinteni, Cluj, Romania
- Area: 330 sqm
- Project Status: Unbuilt
- Design/Completion Year: 2023
- Architecture Office: Meta Morphosis Architecture Studio
- Design Team: Ferencz Bakos, Dragoș Bodean, Maria Scrob
- Structural Engineer: STM STRUCTURAL DESIGN GROUP
- Mep Engineer: Pleș Birou de Proiectare
- Renderings: Dragoș Bodean
Designed to accommodate a large family, this single-family home is set on a generous 756 m² plot featuring an uphill slope from the road and southern exposure toward Lake Chinteni. The building spans three levels — basement, ground floor, and first floor — to fully utilize both the natural terrain and the spectacular lake view.
The home’s simple massing is divided into three horizontal layers. The basement is finished with exposed concrete, giving it a robust, modern feel, while the remainder of the façades combine thermally treated wood with decorative plaster for a warm, contemporary look. Conceived according to nZEB (Nearly Zero Energy Building) standards, the house is equipped with modern systems, photovoltaic and solar panels on the south-facing roof, as well as a heat recovery ventilation system. This ensures low energy consumption and a high level of comfort, meeting both the family’s needs and environmental concerns.
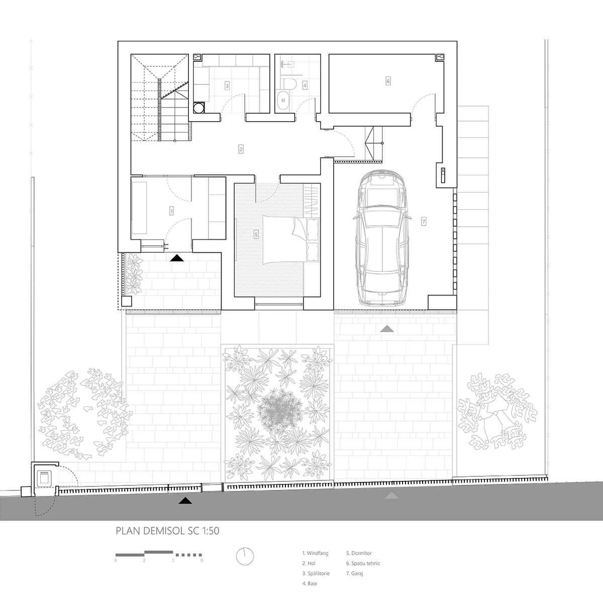
Basement: This level houses the garage, technical spaces, and a guest/hobby room. The main entrance is also located here, accessed via a generous staircase oriented to the northwest, connecting the basement to the upper floors. The garage volume and the loggia above are set back into the main building mass, forming well-defined niches.
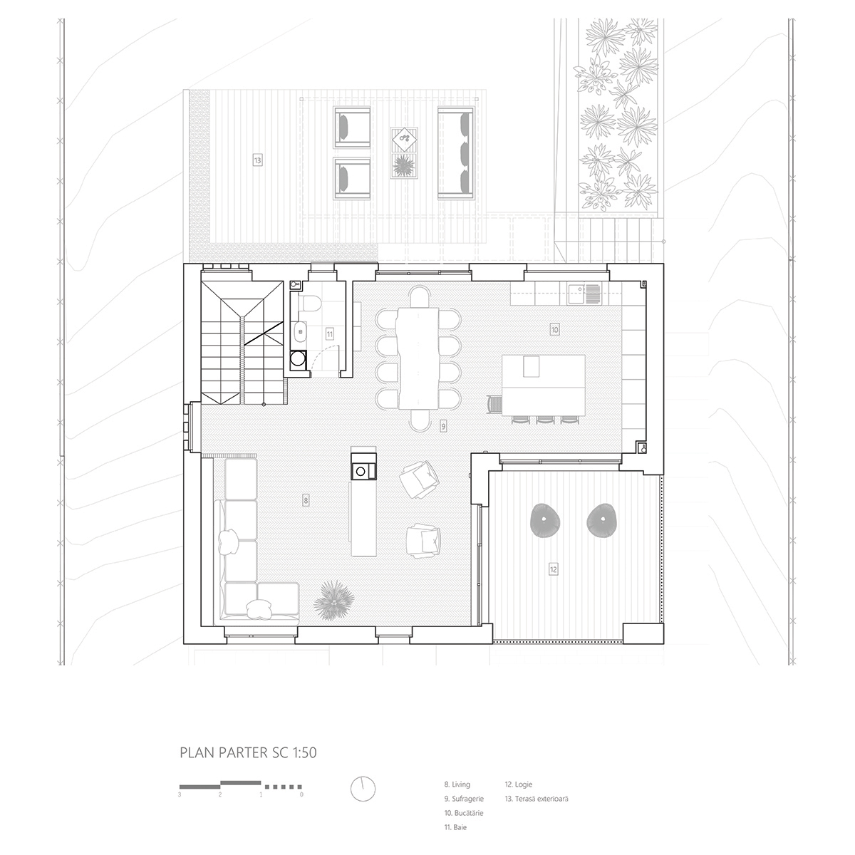
Ground Floor: Dedicated to daily living, this level is divided into two distinct relaxation areas by a central fireplace: one furnished with a sofa and TV, and another arranged around the fireplace for reading. Adjacent to these spaces is the dining area and kitchen in a spacious open-concept layout, featuring a statement table for ten and a central island in the kitchen. Both the kitchen and living area open onto a covered loggia facing the lake—perfect for taking in the natural light and the panoramic views. Another terrace at this level extends toward the backyard and is accessible from the dining area, expanding the living space outdoors.
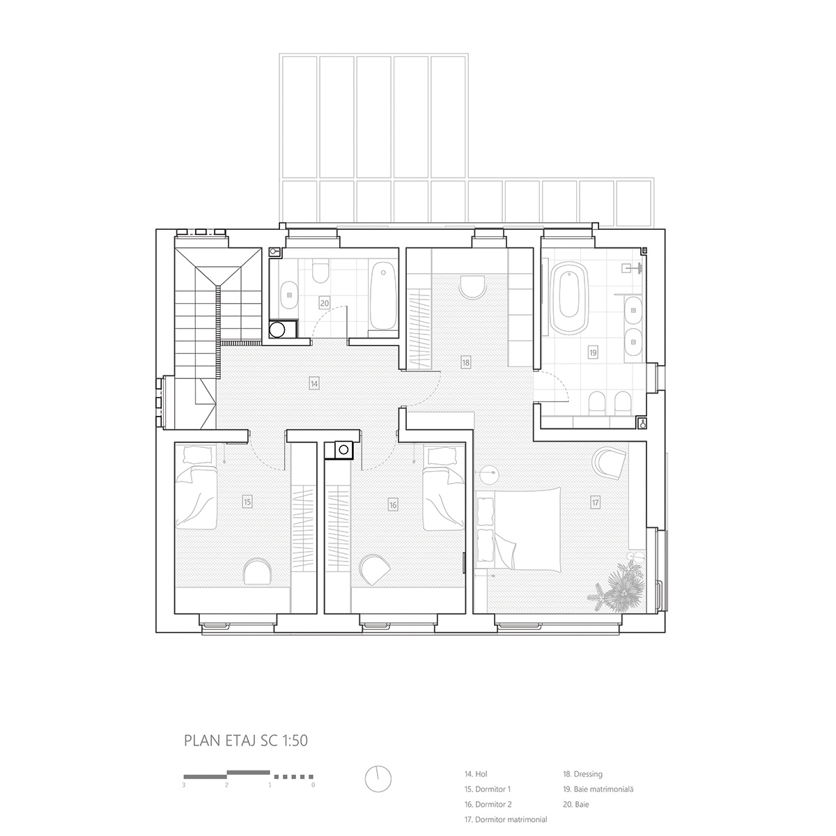
First Floor: This level accommodates the sleeping areas, including two children’s bedrooms served by a shared bathroom, and a master suite with its own bathroom and walk-in closet. Situated on the top floor, these rooms offer privacy and benefit from the southern orientation, providing abundant natural light and a striking view of the lake.
In this way, the home fulfills the needs of a large family while blending harmoniously into the sloping terrain, making the most of the natural setting and green technologies. Sliding wooden panels, horizontal façade divisions, and covered terraces define the project’s architectural character, maintaining a balanced dialogue with the Chinteni landscape.
Proiectată pentru a găzdui o familie numeroasă, această locuință unifamilială se află pe un teren generos de 756 mp, cu o pantă ascendentă dinspre drum și deschidere sudică spre lacul Chinteni. Clădirea este dezvoltată pe trei niveluri – demisol, parter și etaj – pentru a valorifica atât pantă naturală a terenului, cât și priveliștea spectaculoasă către lac.
Volumul simplu al casei este articulat în trei registre orizontale. Demisolul este finisat cu beton aparent, conferindu-i un caracter robust și modern, în timp ce restul fațadelor îmbină lemnul termotratat cu tencuiala decorativă, pentru a obține un aspect cald și contemporan. Casa este gândită conform standardelor nZEB (Nearly Zero Energy Building), fiind echipată cu instalații moderne, panouri fotovoltaice și panouri solare pe acoperișul orientat spre sud, precum și cu un sistem de ventilare cu recuperare de căldură. Astfel, proiectul asigură un consum energetic redus și confort ridicat, având în vedere atât nevoile familiei, cât și impactul asupra mediului.
Demisolul adăpostește garajul, spațiile tehnice și o cameră de hobby/cameră de oaspeți. Accesul în locuință se face tot aici, printr-o scară generoasă, orientată spre nord-vest, care conectează demisolul cu nivelurile superioare. Volumul garajului, împreună cu o logie de la parter, se retrag în masa principală a construcției sub forma unor nișe bine definite.
Parterul este destinat vieții de zi cu zi, fiind împărțit în două zone de relaxare distincte, separate de un șemineu central: o zonă cu canapea și TV și o zonă de lectură în jurul focului. În prelungirea acestui spațiu se află sufrageria și bucătăria, amenajate într-un open-space generos, accentuat de o masă impunătoare pentru 10 persoane și o insulă centrală în bucătărie. Din bucătărie și living se accesează o terasă tip logie, acoperită și orientată către lac, perfectă pentru a profita de lumină naturală și de priveliștea panoramică. O a doua terasă, la nivelul parterului, se deschide spre curtea din spatele casei și este accesibilă din sufragerie, extinzând spațiul de relaxare în aer liber.
Etajul reunește zona de noapte: două dormitoare pentru copii, deservite de o baie comună, și un dormitor matrimonial cu baie și dressing propriu. Poziționate la cel mai înalt nivel, aceste spații oferă intimitate și se bucură de avantajele orientării sudice, beneficiind de lumină naturală și de o priveliște deosebită către lac.
Grație acestor amenajări, casa răspunde cerințelor unei familii numeroase și ocupă armonios terenul în pantă, valorificând din plin cadrul natural și avantajele tehnologiilor verzi. Panourile glisante din lemn, registrele orizontale ale fațadelor și terasele acoperite conturează identitatea arhitecturală a proiectului, menținând în același timp un dialog echilibrat cu peisajul din Chinteni.




